- 2024 경기도건축문화상 사용승인부문 경기건축가회 회장상
- 이상우,성창현,오현석(㈜제이디에이건축사사무소)
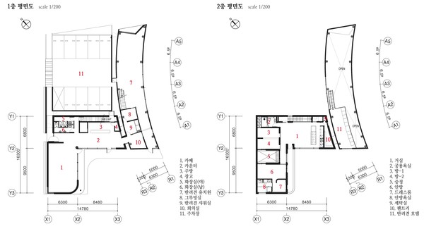
평택시 안중읍 학현리에 위치한 '와우와우[瓦宇瓦宇]'는 반려견 위탁기관 레인바우와 단독주택이 어우러진 상가주택 건물이다.
안중읍 서동대로를 중심으로 남쪽은 도심지역, 북쪽은 자연녹지지역으로, 해당부지는 자연에 조금더 가까운 서동대로 북쪽지역에 위치해 있다.
그렇기에 본 건축물을 품고있는 풍경은 아파트의 높은 건물들이기 보다는 산지와 농지, 그리고 낮은 집들이 옹기종기 모여있는 정겨운 농촌의 모습에 가깝다.
'학현'은 '하오개'의 한자지명으로, 고개가 험하고 높아서 넘는 사람마다 학처럼 날아서 넘었으면 하여 불려진 '학고개'의 명칭을 뜻한다.
그렇게 학현리의 '와우와우[瓦宇瓦宇]'는 주변 마을의 집들과의 풍경을 해치지 않도록 낮고 길게 고안 되었고, 분절된 3개의 매스덩어리에서 중첩되어 보이는 지붕의 형태를 통해 날아오르는 학의 날개를 연상시키고자 하였다.
지붕와(瓦)와 지붕우(宇)를 반복해서 발음한 '와우와우'는 중첩된 지붕을 뜻하면서도, 반려견을 돌보는 레인바우 브랜드의 상징인 강아지가 반갑게 외치는 '와우와우'의 음성이기도 하다.
건축개요
대지위치 : 경기도 평택시 안중읍
지역/지구 : 생산녹지지역
주용도 : 제2종 근린생활시설
대지면적 : 2,080㎡
건축면적 : 318.56㎡
연면적 : 497.63㎡
주요구조 : 철근콘크리트구조, 철골구조
주요부분마감 : 종석뿜칠마감
규모 : 지상 2층
주차대수 : 9대
*** 경기도건축문화상 수상작 작품소개는 관련 저작권은 원작자에게 있으며, 경기도건축사회로부터 자료를 제공받아 게재하였으며, 건축사뉴스 지면에 맞춰 편집해 게재하였음.

