- 2024 경기도건축문화상 사용승인부문 경기도건축사회 회장상
- 아이엠에이 건축사사무소(강진구, 김준헌)
경험을 사는 공간
장소의 경험은 인공과 자연이 만나고 교차하는 관계를 통해 이루어진다. 교외의 대형카페가 그러하듯, 카페는 차에서 내리는 순간부터 시작한다. 주차장에서 카페로 가는 시퀀스에서 카페는 숲 사이에, 하늘 아래, 저수지 아래 숨어서 기다린다. 숲 사이로 난 오솔길을 따라가면 건물의 지붕이 지면처럼 펼쳐지고, 그 너머에 널따란 저수지와 하늘로 높게 뻗은 나무들로 둘러싸인다. 우리는 자연을 산책하듯 시작된 시퀀스를 건축으로 이어가고자 했다. 걷다 보면 카페가 되고, 마당이 되고, 다시 숲과 저수지를 만나는 건물을 만들고자 했다.
주차장에서부터 시작하는 오솔길을 따라 계단을 내려가면 주변의 숲이 따라 내려온 정원을 만난다. 주문공간(홀)을 지나면 천창을 통해 빛이 스며드는 중정공간이 나온다. 눈앞으로 펼쳐진 외부공간과 숲을 끼고 중정을 옆으로 돌아나가면 저수지가 펼쳐진 카페공간이 나온다. 천창에서 스며드는 빛과 저수지 수면의 산란된 빛, 돌과 콘크리트가구로 이루어진 중정과 저수지, 외부의 숲과 내부의 정원, 콘크리트벽와 소나무숲, 나무와 유리, 자연과 건축의 대비가 다양한 상호관계를 만들어 내면서 공존한다. 이러한 땅과 물이 만들어내는 이야기를 장소의 경험으로 바꾸고자 한다.
비일상적 공간과 일상적 경험
기하학에서 말하는 구와 도넛의 위상이 다르듯, 중정은 건물에 입체적인 공간감을 부여한다. 중정과 중정, 건물과 중정, 건물과 건물은 이어진 듯 떨어진 미묘한 긴장감을 만들고, 공간의 다양성을 품게 된다. 낮고 넓은 공간, 놉고 좁은 공간, 높고 넓은 공간 등 비례가 다른 공간들이 나타나고, 공간에서 비춰지는 각기 다른 풍경들이 내부를 풍요롭게 만든다.
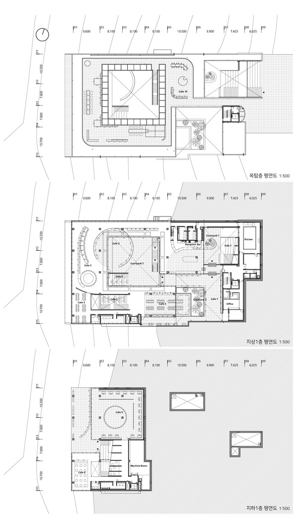
커다란 직사각형의 평면을 작동시키는 것은 3개의 마당(중정)과 커다란 콘크리트 가구들이다. 마당 주위로 공간이 생기고 커다란 콘크리트 가구와 중정 주위의 수벽은 마치 건물 내부의 또 다른 건물처럼 작동한다.
높은 콘크리트벽 위로 보이는 소나무숲과 파란하늘, 푸른잔디와 물을 보며 즐기는 시각적경험, 천창에서 쏟아지는 빛과 콘크리트가구들, 비일상적 공간감이 한편으로 사람에 집중할 수 있도록 한다. 이 곳(카페)에서는 다른 감각들을 자제시키고 하늘, 물, 풀과 나무, 노을, 따사로운 햇빛 등 자연에 최대한 집중하면서 함께하는 사람들과의 관계를 경험하는 일상적 공간으로서의 카페가 된다.
장소성과 프로그램 그 이후
길을 만들고, 장소를 만든다. 장소성은 시간과 밀접하게 연관되고 따라서 공간구성의 중요한 요소가 될 때 우리는 추상적인 공간보다는 감각적으로 느끼는 구체적인 장소로 인식한다. 잘 구축된 장소로서의 이 공간은 카페로서의 역할에 더해 시간의 흐름에 맞춰 잠재된 변화의 가능성을 가지고 있다
건축개요
대지위치 : 경기도 안성시 양성면
지역/지구 : 도시지역, 자연녹지지역
주용도 : 제2종 근린생활시설
대지면적 : 9,747㎡
연면적 : 2,246.55㎡
건축면적 : 1.648.79㎡
건폐율 : 16.92%
용적률 : 14.65%
주요구조 : 철근콘크리트 구조
주요부분마감 : 노출콘크리트, 로이복층유리
규모 : 지하 1층, 지상 1층
주차대수 : 65대
*** 경기도건축문화상 수상작 작품소개는 관련 저작권은 원작자에게 있으며, 경기도건축사회로부터 자료를 제공받아 게재하였으며, 건축사뉴스 지면에 맞춰 편집해 게재하였음.

