- 2024 경기도건축문화상 사용승인부문 은상
- 오승태(건축사사무소 가가호호)
“보이지 않는 것의 가치가 커지고 있습니다.
삶이 각박해지면서 형태의 유무를 떠나 쉽게 변하지 않는 것을 찾는 마음이 절실해지는 듯합니다. 어려울때 일수록 참된 가치를 쫓는 건 당연한 이치일 것입니다.
무형문화재는 말 그대로 무형(無形)의 가치를 일깨우는 소중한 자산입니다.”
광명농악 인간문화재 임웅수 인터뷰 中
광명농악과 서도소리의 도시, 광명
광명시에는 오래전부터 예술적이고 학술 가치가 있는 무형문화재가 전해지고 있다. 450년 전 소하동과 학온동 지역에 면면히 전승되어 내려오는 광명농악(경기도무형문화재)과 황해도와 평안도의 서도지역에서 면면히 이어져 내려오는 서도소리(국가무형문화재)보유자와 인간문화재가 광명을 뿌리로 하고 있다.또한 지정문화재는 아니지만 아방리 농요와 아방리 줄다리기와 같은 무형문화재도 있다.
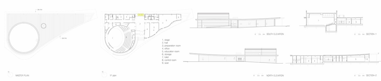
그동안 광명시에는 무형문화재 전용 교육장과 공연장이 없어 전승, 보급에 어려움을 겪어 왔으며 체계적 전통문화육성을 위한 전수관 건립의 필요성이 대두되어왔다. 전수관은 전통과 현대의 이미지를 적절히 조화해 전체 연면적 997.13㎡에 지상 1층 규모로 설계되었다. 지역무형문화재의 보존 및 전승과 시민들의 전통문화 교육을 위해 공연장, 연습실, 교육실 등의 시설을 갖추고 지역문화를 활성화하는 공간으로 조성하는 것이 목적이었다.
기형도 문화공원에 전통을 더하다
대지는 광명시를 대표하는 시인, 기형도 문화공원 내 문학관 바로 옆에 자리한다. 기형도 문화공원은 평상시 시민들이 산책과 운동을 하는 장소이고, 숲이 매우 울창해 휴식공원으로 인기가 있는 곳이다. 전수관의 입구가 기형도 시길 산책로에 면하고 있어 문화공원의 새로운 장소로 시민의 접근성을 높였다. 외부조경은 야외공원으로 자연스럽게 연결되어 다양한 풍경을 조성한다.
전통의 소리, 몸짓 그리고 신명의 공간으로
설계공모 당시부터 넉넉하지 않은 경사진 대지 여건 및 인접 고속도로 소음의 몇 가지 조건들에 반응하며 이상적인 가능성을 탐색하는 것이 우리 건축가에게 주어진 과제였다. 부지는 대략 둥근 직삼각형 형태로 프로그램 배치를 신중히 해야 하는 특이점이 있었다. 경사진 기존 보행로와는 부지 레벨을 해결해야 하는 어려움도 있었지만, 무엇보다도 무형의 문화적 가치를 건축물에 담아야 하는 과제에 고민을 하였다. 발주처가 요구한 경제성과 시공성을 고려하면서도 공공건물의 통속적 외관을 지닌 건물이 되지 않기를 바랬다.
평면은 좌우로 긴 형태이다. 부지 둥근 부분에 큰 면적인 공연장을 배치하고 중앙 홀을 중심으로 좌측은 공연장과 대기실, 우측은 연습실 및 사무공간과 교육공간으로 구성된다. 공연장은 반원형의 아담한 무대와 150석 규모의 객석을 갖추고 있다. 무대와 객석의 거리가 가까워 그만큼 연희자와 관객이 함께 호흡하기에 최적화되어 있는 공연장이다. 한편 다양한 프로그램을 흡수할 수 있는 층고가 높은 공연장으로 계획해 지역사회의 문화 중심공간으로 활용될 수 있도록 구성했다.
중앙홀의 커다란 원형천창은 채광을 위해 중요한 역할을 담당한다. 이로 인해 협소하지만 답답해 보이지 않고 공간적으로 다양하고 흥미로운 시선관계를 가질 수 있도록 하였다.
먼저, 전통의 소리(音)와 몸짓(舞)을 최대한 이해하기 위해 노력했다. 단순히 건축이 가지는 기능을 충족하는 것에 머무는 것이 아니라, 그 이상의 의미를 형태와 공간에 담아내고 싶었다.
전통의 “소리”가 가지는 구성진 가락은 건물의 형태를 만드는 중요한 요소로 활용했다. 지붕 처마의 곡선과 외벽의 변화있는 움직임은 전통 ”몸짓“의 추상적 이미지를 형태적으로 승화한 표현이다. 비상하는 곡선형의 지붕 형상은 마치 떠 있는 거대한 상모의 이미지와 유사하며 지붕의 형태와 서까래는 마치 전통 건축의 양식을 닮도록 했다.
외장재는 시간이 지나면서 그윽한 회백색으로 변모하는 탄화목으로 전통적인 외관으로 보여지도록 하였고 내부에도 동일한 목재로 벽체를 마감하여 외부와 내부 그리고 공원의 연속성이 자연스럽게 확보되도록 하였다. 이와 대조적으로 공연장은 치장벽돌로 마감해 현 광명시의 예술회관, 대공연장과 동일한 재료 선택으로 도시의 정체성을 의도했다. 향후 등나무 줄기가 벽면을 타고 오르내리길 기대한다.
에헤라 만선이다. 신바람 난다
이제부터는 많은 관객이 “광명농악”과 “서도소리”를 관람할 시간이다. 서도민요에는 인생의 희노애락을 구성진 가락으로 풀어내고, 흥과 신명의 광명농악은 풍년을 기원하는 농부의 마음을 전한다. 긴 세월 이겨낸 형태로 헤아릴 수 없는 아름다움은 우리의 무형문화재 속에 깊게 묵직하게 담겨져 있다. 이를 보존하고 전승하는 것은 우리 모두의 의무이기도 하다.
지금 전수관에서는 시민들이 참여하는 상설공연과 다양한 지역문화의 행사가 열리고 있다. 또한 공원을 산책하는 시민들이 특이한 외관의 건물을 보고 찾아오셔서 배울 수 있는지 많이 문의를 많이 하고 관심을 갖는다고 들려온다. 올해부터는 공연장을 활용해서 시민들에게 배움의 기회를 주는 프로그램을 만들어 전수에 그치지 않고 전통문화를 이어갈 수 있는 발판의 장소로 활용할 계획이다.
광명전통무형유산전수관은 전통의 가치를 느끼고, 즐기는 장소로 자리매김하면서 물고기가 가득 찬 배를 몰고 귀향하는 만선처럼 많은 이들로부터 신명(新明)나는 공간으로 지역문화 활성화에 플랫폼 역할을 할 수 있기를 기대한다.
건축개요
대지위치 : 경기도 광명시 오리로
주용도 : 문화 및 집회시설 (공연장)
지역/지구 : 자연녹지지역, 제1종지구단위계획구역, 문화공원
대지면적 : 1,363.87 ㎡
건축면적 : 1,006.19 ㎡
연면적 : 997.13 ㎡
주요구조 : 철근콘크리트구조
주요부분마감 : 치장벽돌쌓기, 탄화목재마감, 티타늄아연도강판
규모 : 지상1층
주차대수 : 총27대(장애인 주차장 3대)
*** 경기도건축문화상 수상작 작품소개는 관련 저작권은 원작자에게 있으며, 경기도건축사회로부터 자료를 제공받아 게재하였으며, 건축사뉴스 지면에 맞춰 편집해 게재하였음.

