- 2024 경기도건축문화상 사용승인부문 금상
- 이정훈(㈜조호 건축사사무소)
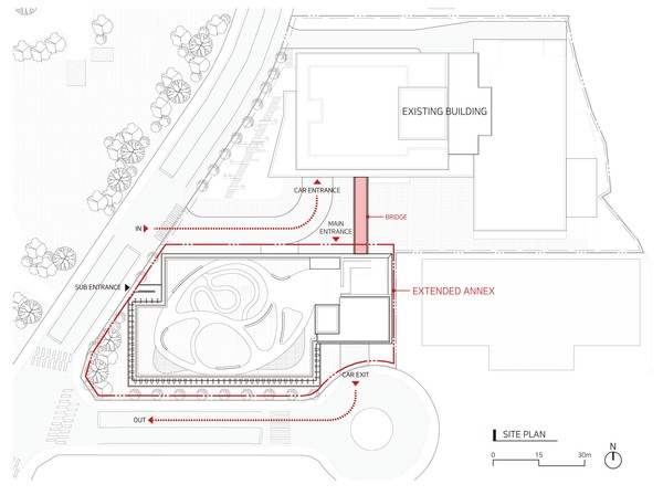
기존 사옥은 남향을 면해 유리 파사드로 이루어져 여름철 남측에 위치한 업무공간의 실내 온도가 상승하는 문제가 있었다. 이는 직원들의 쾌적함을 저해하고 업무 효율성을 낮추는 요인이 되어 발주처측의 상당한 애로사항으로 지적되었다. 또한 투웨이 방식으로 설계된 주차장은 회전반경이 좁아 출입이 불편하고 잦은 접촉사고가 발생하는등 동선상 문제를 안고 있었다. 본 프로젝트는 기존 사옥의 남측에 증축동(복지동)을 신축하는 것으로 기존 사옥이 지닌 주요한 문제점들을 해결하고 브랜드의 새로운 이미지를 구축하는데 목적이 있었다.
신축 복지동은 다양한 복합문화시설 프로그램으로 계획되었다. 즉 오픈형 도서관, 카페테리아, 회의실, 업무공간, 공연장, 체력단련실 등 기존 사옥과 연계하여 새롭게 필요로 하는 프로그램들로 채워져 있다. 또한 건축적으로 기존 사옥이 지녔던 단점을 극복하고 이를 새롭게 보완하는데 초점이 맞추고자 하였다. 남측에 특징적인 루버월을 사용하여 본관으로 들어오는 직사광선을 차단하여 실내 온도 상승을 억제하고, 여름철에도 쾌적한 실내 환경을 유지할 수 있도록 하였다. 또한, 기존사옥과 복지동을 지하로 연결하여 주차장을 원웨이 방식으로 새롭게 연결하였으며 상부에 브릿지를 구축하여 효율적인 동선체계를 제공하고자 하였다.
LOUVER SIMULATION
남서측의 파사드는 깊이감 있는 루버를 사용하여 남향의 강한 햇빛을 차단하면서도 내부에서는 개방감있는 뷰를 제공한다. 모듈화된 수직 루버는 유닛의 반복결합으로 나무 줄기들의 연속과 같은 상징적인 패턴을 만들어 낸다. 이러한 수직 루버의 깊이와 간격은 태양의 일주에 따라 적절한 자연광을 배분하여 쾌적한 내부 환경을 구성하게 된다. 본 프로젝트에서는 태양의 일주동선을 시뮬레이션을 통해 분석하고, 이를 루버의 깊이와 형태를 구성하는 주요 데이터로 사용하고자 하였다.
본 루버는 알루미늄 37로 구성되어 있다. 형태가 가진 유선형을 최대한 살리고자 절곡면을 최소화하고자 하였고 이를 위하여 금속재료가 지닌 탄성을 곡면형태로 이용하고자 하였다. 즉 알루미늄이 지닌 탄성을이용해 장방형 패널을 트위스트 시킨후 클립방식으로 고정함으로서 절곡면과 코킹 마감을 최소화할 수 있었다. 이러한 최소화된 절곡면은 효율적인 시공성과 추후 발생할 수 있는 유지관리에 대한 어려움을 해소할수 있다. 즉 이중곡면 형태를 알루미늄 루버가 지닌 탄성을 이용하여 시공함으로서 합리적인 시공성과 동시에 에너지 효율을 극대화하고자 한 것이다.
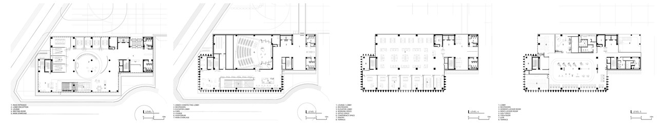
남측에는 로비, 카페테리아, 오픈형 도서관 등 다양한 공용공간으로 구성되고, 북측에서는 자연광이 필요없는 공연장, 코어, 화장실이 배치되었다. 외부회의실과 카페테리아와 같은 공용공간은 저층부에 배치되며 업무공간 및 스포츠 시설은 최상부에 배치하여 프라이빗한 공간으로 구성했다. 중간층에는 공연장을 구성하여 기존 업무공간에서 브릿지를 통하여 쉽게 접근하도록 유도햇다. 프로그램을 특성에 맞게 수직적으로 배분하여 효율적인 동선체계를 구성하고 했다.
건축개요
대지위치 : 경기도 용인시 기흥구
지역/지구 : 도시지역/준주거지역
주용도 : 업무시설
대지면적 : 6,064.80㎡
건축면적 : 3,598.44㎡
연면적 : 24,904.94㎡
주요구조 : 철근콘트리트 구조
주요부분마감 : 로이복층유리, AL 루버, 화강석
규모 : 지하 2층, 지상 7층
주차대수 : 204대
에너지성지표점수 : 67.09
*** 경기도건축문화상 수상작 작품소개는 관련 저작권은 원작자에게 있으며, 경기도건축사회로부터 자료를 제공받아 게재하였으며, 건축사뉴스 지면에 맞춰 편집해 게재하였음.

