- 2023 경기도건축문화상 사용승인부문 입선
- 박현근(재귀당 건축사사무소 )
소유헌(逍遊軒)
집의 이름 소유헌(逍遊軒)은 장자의 소요유(逍遙遊)에서 착안했다.
소(逍) : 어른들에게는 느긋하게 마당을 걸으며 편하고 안정된 시간을 보내는 공간을
유(遊) : 아이에게는 늘 소풍을 온 것 같은 느낌을 제공하고 싶었다
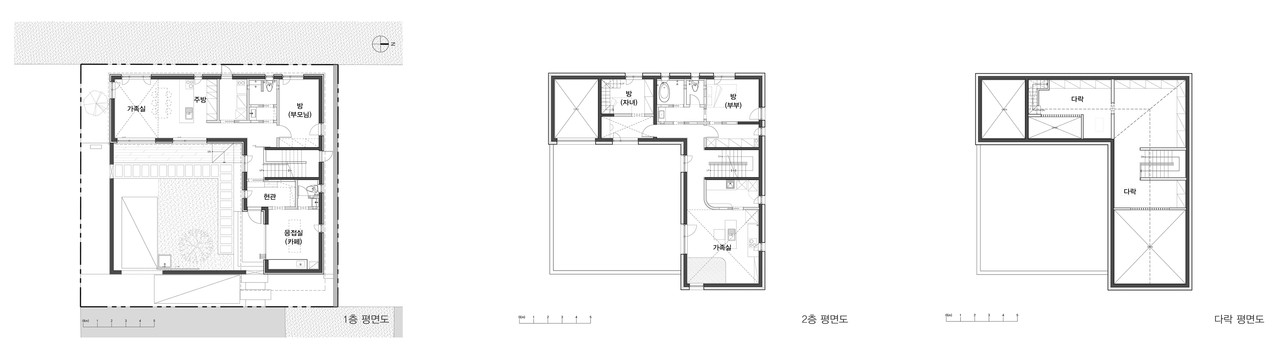
차분하고 안전한 중정형 주택
site는 이른 시기에 조성된, 최근의 택지 크기보다는 조금 여유가 있는 단독택지의 경계에 위치한다. 조금만 벗어나도 고층 아파트와 빌딩 등으로 도시화가 완성된 동네이다. 첫 site 방문에서 주변의 너무나강렬한 기존 주택들의 모습에 조금은 차분한 디자인을 생각했다. 전체적인 디자인은 중정을 만들어내는담장과 건물을 일체화시켜 전체적인 요소가 많지 않고 차분한 이미지로(흡사 건축주의 성향과도 어울리는)로 만들어내고 싶었다. 상층부 매스는 거친 재료로 선정해 중정에서의 빛의 움직임, 시간의 흐름과변화를 좀 더 강하게 느낄 수 있도록 하고자 했다.
카페와 같은 응접실
1층 현관에서 집안으로 들어가지 않고 진입, 사용할 수 있는 별도의 ‘카페’ 같은 공간을 구성했다. 마당으로 열려있으며 외부에서도 쉽게 접근이 가능하다. 전 가족이 모이거나, 초등학생 딸과 친구들이 모여놀거나, 혹은 부모들이 시간을 보내거나, 또는 늦은 시간 혼자 조용한 시간을 보내는 다양한 용도의 공간이다. 낮 시간엔 아내와 아이의 공간으로, 저녁시간에는 남편의 공간으로, 주말에는 가족의 공간으로 활용된다.
수직적으로 분리된 공간 구성
층간소음이 민감할 수 있으므로 구조는 콘크리트를 제안했으며, 측면완충재까지 충실히 적용했다. 공간적으로는 1층을 부모님의 공간과 공용의 공간으로 구성하고 2층을 부부와 자녀의 공간으로 구성했다.
하나의 현관을 사용하되, 현관을 지나면 바로 2층을 올라가는 계단을 만들고 소음 차단을 위한 도어를설치했다. 늦은 밤이라도 잠든 부모님께 피해를 주지 않고 편하게 배달음식을 시킬 수 있도록 하기 위함이다. 또한, 가장 소음이 많을 수 있는 2층의 아이방과 늦게까지 시간을 보내는 가족실은 수직적으로1층 부모님방과 가장 먼 곳에 배치했다.
건축개요
대지위치 : 경기도 파주시 동패동
지역/지구 : 제1종일반주거지역, 제1종지구단위계획구역
주용도 : 단독주택
대지면적 : 307.2㎡
건축면적 : 118.30㎡
연면적 : 198.50㎡
주요구조 : 철근콘크리트구조
주요부분마감 : 외단열미장마감, 타일벽돌
층수 : 지상 2층
주차대수 : 2대
*** 경기도건축문화상 수상작 작품소개 관련 저작권은 원작자에게 있으며, 경기도건축사회로부터 자료를 제공받아 게재하였으며, 건축사뉴스 지면에 맞춰 편집해 게재하였음.

