- 2023 경기도건축문화상 사용승인부문 입선
- 최정인(일상 건축사사무소)
바다가 보이는 한적한 곳에 부부는 그들뿐만 아니라 모두를 위한 집(ㅁㅁㅁㅁ주택)을 짓기로 했다.
누구나 일상을 잊고 휴식을 취할 수 있는 스테이 같기를 원했다. 원하는 방향이 명확 했기에 요구하는 프로그램은 단순했다.
넓은 거실, 최소한의 주방, 침실
주택과 마당을 공유하는 바로 옆 주택은 현재 클라이언트 부부가 생활을 하고 있다. 다양한 입면 요소로 조금은 복잡한 모습을 하고 있었기에 새롭게 들어설 주택은 그 어떤 건물 보다도 단순하고 선이 굵기를 바랬다. 그렇기 위해 수평선을 강조하는 매스의 구성을 하였다.
선택적으로 마당을 공유하고 시선의 간섭을 없애기 위해 거실 앞 버퍼 공간을 만들어주는 장치로 가벽을 계획했다. 이 가벽은 외벽의 시선을 차단함과 동시에 빛을 끌어들이고 실내에서 바라보면 수목의 배경이 된다.
바닷가이기에 고민해야 하는 부분은 염분이었다. 건물의 외장재는 세라믹타일이고 일반적인 다른 외장재에 비해 염분에 강한 것과 각종 오염으로부터 자유로울 수 있다는 점이 크게 작용하였다.
건축물이 지표면에서 살짝 떠있는 모습을 주고 싶었다. 이곳을 찾는 이들이 그 낮설음에 기분좋은 호기심을 가지고 진입하기를 원했고, 클라이언트가 가장 바랬던 일상을 잊는다는 하나의 상징적인 형태가 될 수 있을 거라 생각했다.
가벽과 건축물 사이공간의 조경을 바라보며 1층으로 진입이 이루어진다.
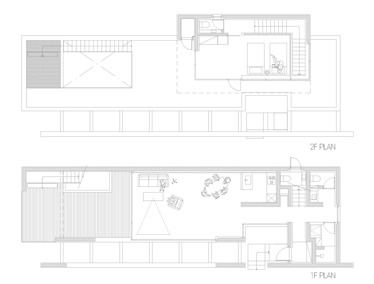
지상 1층에는 거실과 주방, 화장실 그리고 거실과 연결되는 외부 공간 계획되었다. 거실은 앞 바다 쪽으로 시선이 확장되고 외부 데크로 나갈 수 있는 창과 가벽을 배경삼아 근거리 조경공간을 누리고 그 넘어로 개구부를 만들어 시선이 하늘을 향하는 창으로 공간감을 주고자 했다.
지상 2층을 올라가면바다와 주변을 한눈에 바로 볼 수 있는 파노라마와 같은 뷰를 만들고자 벽량을 최소화 하고 콘크리트 원형 기둥으로 지붕 슬래브를 지지했다. 외부공간은 지상 1층과 마찬가지로 바다쪽으로 향하도록 열어 두었다.
ㅁㅁㅁㅁ주택은 부부를 위함과 동시에 그들과 연결이 되어있는 가족, 지인, 회사 직원들이 편하게 휴식을 취하고자 만들어진 곳이다. 이런 마음으로 시작된 프로젝트는 부부의 마음을 이해하듯 많은 이들이 부담없이 찾아와 잠시나마 일상을 잊고 휴식을 취할 수 있는 공간이 되었다.
건축개요
대지위치 : 경기도 안산시 단원구 선감동
지역/지구 : 도시지역,자연녹지지역/특화경관지구
대지면적 : 988.0㎡
연면적 : 115.2㎡
건축면적 : 126.5㎡
주요구조 : 철근콘크리트구조
주요부분마감 : 자기질타일
주용도 : 단독주택
층수 : 지상 2층
주차대수 : 1대
*** 경기도건축문화상 수상작 작품소개 관련 저작권은 원작자에게 있으며, 경기도건축사회로부터 자료를 제공받아 게재하였으며, 건축사뉴스 지면에 맞춰 편집해 게재하였음.

