- 2023 경기도건축문화상 사용승인부문 입선
- 이병철(㈜이가플랜 건축사사무소)
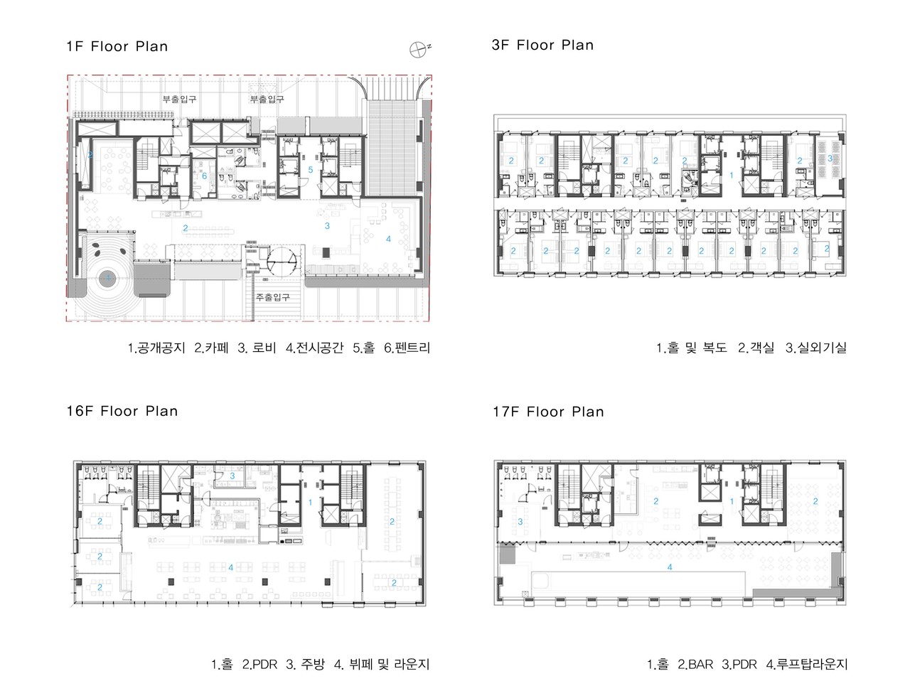
포포인츠 바이 쉐라톤 수원호텔
포포인츠 바이 쉐라톤 수원호텔은 과거부터 현재 그리고 미래가 공존하는 수원의 중심부에 위치해있다. 이러한 도시의 시간적 흐름을 '엮음(WEAVING)'이라는 요소로 자연과 도시구조의 전통적인 패턴을 현대적인 감각으로 재해석하여 주변 경관에 저해되지 않도록 간결하고 품격있는 디자인으로 계획하였다.
계획대지의 전면으로는 20m 대로, 배면에는 8m 도로가 접해있어 지상에 별도의 주차공간 없이 지하로 통하는 램프를 계획하여 차량동선과 보행자 동선을 분리하였다. 이에 정면 입면의 일부를 건물 내부로 끌어들여 쌈지형 공원으르 조성하고, 보행가로에 연속성과 개방감을 더해 주었다.
수원시 색채가이드라인에 따른 색채계획을 통해 주변과 조화로운 경관을 형성하고자 했다. 단순하게 율에 둘러쌓인 박스형 건물이 아닌, 석재의 엮임과 돌출을 활용해 단정하면서도 역성성을 가진 조형적인 입면을 디자인하고자 하였다.
건축개요
대지위치 : 경기도 수원시 팔달구 효원로307번길 27
대지면적 : 1,326.8㎡
건축면적 : 796.05㎡
연면적 : 15,747.09㎡
규모 : 지상 18층/ 지하 5층
주요구조 : 철근콘크리트구조
용도 : 숙박시설(관광호텔)/ 제2종근린생활시설
*** 경기도건축문화상 수상작 작품소개 관련 저작권은 원작자에게 있으며, 경기도건축사회로부터 자료를 제공받아 게재하였으며, 건축사뉴스 지면에 맞춰 편집해 게재하였음.
이일 기자
a_news@daum.net

