- 2023 경기도건축문화상 사용승인부문 입선
- 최재복(오드 건축사사무소)
더체어는 가구 제안부터 기획, 설계까지 프로젝트 분야에 특화된 역량을 가진 전문 디자이너들로 구성된 가구회사다.
서울에 본사를 두고 가구 창고를 용인 부근 여러 곳에 나눠 임대하면서 물류 및 관리비용이 급속도로 상승되어 효율적인 관리를 위한 자체 물류시스템을 구축해 운영하는 체계로 전환을 모색해야하는 시점에 이르렀다.
건물 설계에 대한 더체어의 제안은 명확했다. 가구 보관에 최적의 환경을 갖춘 물류공간과 판매, 업무, 전시, 휴식등 필요한 모든 기능을 일원화한 복합적 건물이다.
장소
양지는이천과 함께 물류밸트를 이루는 수도권의 대표적인 물류유통산업 지역이다. 정해진 곳으로 물류가 이동할 수 있게 흐름을 관리하고 조율하는 곳으로막힘없이 물류가 흐르는 활력 넘치는 지역이다. 대지는 양지IC부근에 위치하고 있어 외곽으로의 진출입이 용이하고 전면에 24m 대로가 인접해 방문객도 쉽게 찾아와 카페와 매장을 이용할 수 있는 최적의 장소다.
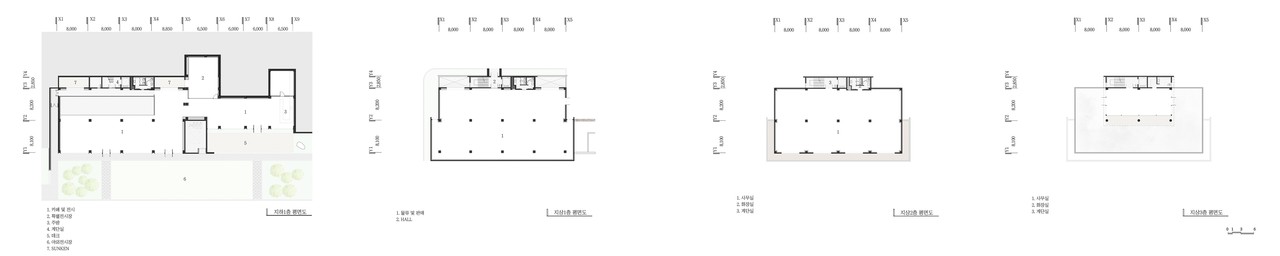
공간
4개 층으로 구성된 더체어는 가구 스케일의 물류를 수용함과 동시에 방문자의 동선을 고려하여 계획했다. 일반 방문객을 위한 카페와 전시장은 넓은 마당과 연결 된 지하1층에 위치하며, 상담 방문객의 동선은 지상1층에서 3층까지 연결된다. 더체어는 가구 디자인의 빠른 변화에 대응하기 위해 내부 마감 범위를 최소화 하면서 변화에 유연하게 대응 할 수 있는 시스템을 구축했다.
건축
주변 대부분의 건축물은 물류용도로 만들어져 인간적 스케일을 압도하는 규모와 앞뒤가 구분되지 않을 정도의 무표정한 모습을 갖고 있다. 일반적으로 물류용도의 건물을 계획하면 효율성과 관련 없는 내용은 끼어들 틈을 주지 않기 때문에 무표정함은 자연스럽게 형태와 배치에 담겨진다.
더체어 역시 효율성은 놓쳐서는 안 될 설계 기준이기 때문에 지역의 특이성과 더체어의 정체성을 건축적으로 표현하기 위해선 효율성이 담보 되어야 했다. 처음 시작은 건물의 형태에 개념적 의미를 두지 않고 하나의 단순하고 명확한 형상을 만드는 것에 초점을 맞춰 세밀하게 건물의 비례만 조정했다.
단순한 볼륨만 지닌 콘크리트 외벽에 차분한 표피를 촘촘하게 새겨 넣었다. 표피는 일상 속에 숨겨진 빛을 나타나게 하는 역할을 하게 되며 4개의 면으로 구분되어 있고 두 개의 면은 표피 방향을 반대로 바꿔 빛의 변화를 시작부터 끝까지 따라 갈 수 있게 했다.
아침은 1,3번 면이 표피에 빛을 받아 그림자를 나타내고 오후는 2,4번 면이 표피에 빛을 받아 그림자를 그리며 시시각각 변하는 빛과 호흡을 같이 한다. 변하지 않는 단순한 매스 속에서 쉴 틈 없이 변하는 그림자의 움직임은 건축의 일관된 모습과 고정된 개념을 부정한다. 하늘과 구름에 따라 날마다 새롭게 변하는 빛과 일상을 같이하며변화를 두려워해야 할 이유가 없어졌기 때문이다.
건축개요
대지위치 : 경기도 용인시 양지면 양지리
대지면적 : 3,569 ㎡
지역/지구 : 도시지역/자연녹지지역
연면적 : 2,352.3 ㎡
건축면적 : 676.11 ㎡
주요구조 : 철근콘크리트구조
주요부분마감 : 노출콘크리트, 스타코
주용도 : 제2종 근린생활시설
층수 : 지하1층/지상3층
주차대수 : 25대
*** 경기도건축문화상 수상작 작품소개 관련 저작권은 원작자에게 있으며, 경기도건축사회로부터 자료를 제공받아 게재하였으며, 건축사뉴스 지면에 맞춰 편집해 게재하였음.

