- 2023 경기도건축문화상 사용승인부문 입선
- 조호균(㈜다니엘파트너스 건축사사무소)
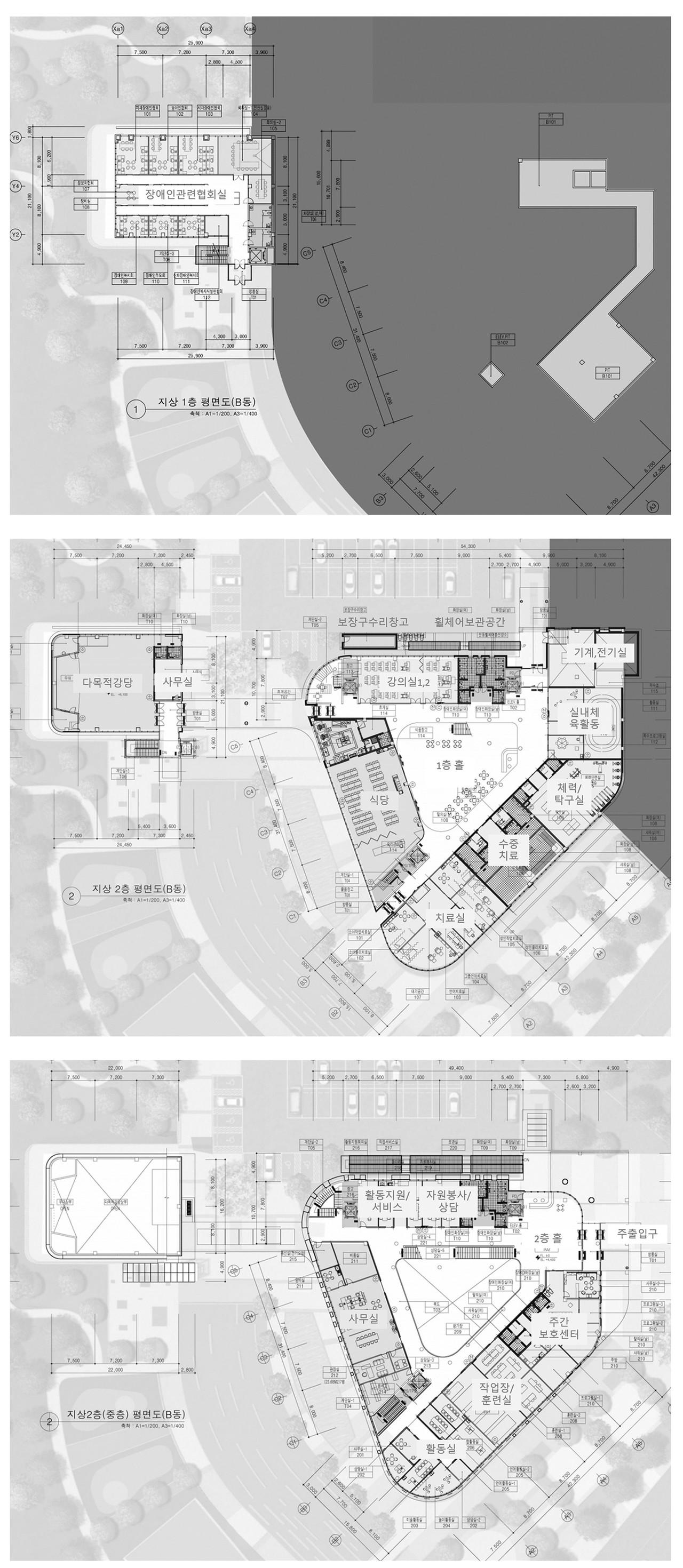
건축개요
대지위치 : 경기도 이천시 신둔면 지석리
대지면적 : 13,347.7㎡
지역/지구 : 보전관리지역
연면적 : 4,834.73㎡
건축면적 : 2,667.45㎡
주요구조 : 철근콘크리트구조
주요부분마감 : 세라믹박판패널, 로이복층유리
주용도 : 장애인복지관
층수 : 지상 2층
*** 경기도건축문화상 수상작 작품소개 관련 저작권은 원작자에게 있으며, 경기도건축사회로부터 자료를 제공받아 게재하였으며, 건축사뉴스 지면에 맞춰 편집해 게재하였음.
이일 기자
a_news@daum.net

