- 2023 경기도건축문화상 사용승인부문 금상
- 권재희((주)목금토 건축사사무소)
PASSIVE HOUSE
지구 온난화에 따른 문제가 대두되며, 에너지 소비에 대해 우리 세대의 책임감 있는 선택이 필수가 되었다. 이 집은 이러한 맥락에서 패시브 하우스로 설계하게 되었다.
· 패시브 인증 : 4.5리터 패시브 주택
· 에너지 효율등급기준에 의한 등급 : 1+
· 연간 에너지 총소요량 : 19,320kWh
· 연간 총 에너지 비용 : 1,330,100원
일사획득을 위한 중정과 남측으로 낮은 매스 배치
패시브 하우스의 중요 요소인 일사획득을 위해 건물의 간격을 넓히고 여기에 중정을 배치해 집안 곳곳에 햇빛이 닿게 한다. 독일 인증 시스템 창호와 캐노피 그리고 전동블라인드를 통해 여름철에는 일사량을 줄이고 겨울에는 적극적으로 끌어들인다.
기밀시공관 열교차단
단열성과 기밀성이 뛰어난 패시비 인증 시스템 창호를 사용하고 창호와 설비로 생기는 개구부에는 기밀테이프를 시공해 기밀성능을 높였다.
· 기밀성능(n50) : 0.23회/h
또한 외벽 석재를 시공하기 위해 열교차단 자재를 사용해 석재 하지철물로 인한 열교 에너지 손실을 최소화했다.
액티브 요소
유효전열교환효율 80%의 전열 교환기, PV 7.5kW 태양광 패널을 설치하고, 모든 마감자재는 E0 이상을 사용함으로써 에너지에서 우수한 것은 물론 환경호르몬의 영향에서도 벗어나게 하였다.
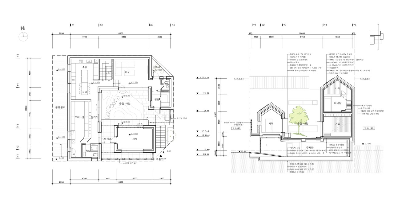
회랑형 주택배치
이 대지는 동, 남, 북의 3면이 도로로 둘러싸여 있는 택지개발지구의 도시형 주택으로 소음과 프라이버시로부터 주거공간을 보호해야 했다. 또한 남측의 공용주차장(예정) 부지로부터 주택을 보호하기 위해 실들을 대지 외관으로 회랑처럼 둘러쳤다. 이로써 만들어진 중정은 이 집에 채광과 환기를 위한 중요한 매개체가 되었다. 북측으로 높은 대지레벨을 고려해 남층은 지하주차장과 서재를 배치하고 높이를 낮춤으로 채광에 더욱 유리하게 하였다.
그린 테라피 : 중정과 작은 마당 3개
중정은 빛과 자연, 조망 등의 기능적 역할뿐 아니라 치유의 정원으로 역할을 한다. 정원에 맞닿은 공간의 문들은 열리고 닫힘에 따라 주거공간의 일부도 되고 외부공간도 된다. 치유로서의 녹지공간을 작게 나누어 곳곳에 배치해 휴식이 필요한 공간(욕실, 서재, 화장실)마다 그린 테라피의 역할을 하도록 했다. 빛과 환기는 정서적 측면뿐 아니라 위생에도 도움이 크다.
바이러스로부터 쾌적한 환경
팬데믹을 겪으며 위생적인 생활환경이 중요하게 생각되었다. 세균과 바이러스를 출입구에서부터 차단하는 주택 프로그램이 필요하였다. 대안은 현관부분에서 공동의 욕실과 드레스룸을 설치하고 외부의 세균과 바이러스를 차단하는 방법이다. 시대의 요구에 따라 주택의 프로그램은 새롭게 정의되고 바뀌어야 한다. 여기에 언제든지 재택근무가 가능하도록 서재 겸 사무실의 다목적 별채를 마련하였다.
건축개요
대지면적 : 338.5㎡
건축면적 : 166.43㎡
연면적 : 443.15㎡
*** 경기도건축문화상 수상작 작품소개 관련 저작권은 원작자에게 있으며, 경기도건축사회로부터 자료를 제공받아 게재하였으며, 건축사뉴스 지면에 맞춰 편집해 게재하였음.

